Mặt bằng tầng điển hình
STa
STa1 Phòng ngủ + 1 WC
DT tim tường (GFA): ~46.3 m²
DT thông thủy (UFA): ~41.0 m²

1 Phòng khách
1 Bếp
1 Phòng ngủ
1 Phòng tắm
1 Logia

ST
ST1 Phòng ngủ + 1 WC
DT tim tường (GFA): ~45.7 m²
DT thông thủy (UFA): ~41.3 m²

1 Phòng khách
1 Bếp
1 Phòng ngủ
1 Phòng tắm
1 Logia

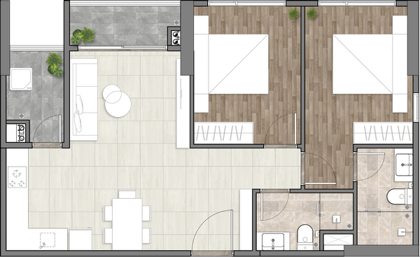
B2a
B2a2 Phòng ngủ + 2 WC
DT tim tường (GFA): ~73.2 m²
DT thông thủy (UFA): ~66.2 m²

1 Phòng khách
1 Bếp
2 Phòng ngủ
2 Phòng tắm
1 Logia
1 Sân phơi

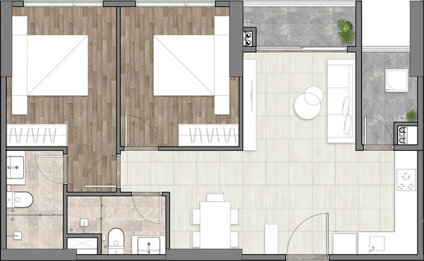
B2
B22 Phòng ngủ + 2 WC
DT tim tường (GFA): ~72.8 m²
DT thông thủy (UFA): ~66.2 m²

1 Phòng khách
1 Bếp
2 Phòng ngủ
2 Phòng tắm
1 Logia
1 Sân phơi

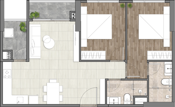
B3
B32 Phòng ngủ + 2 WC
DT tim tường (GFA): ~73.6 m²
DT thông thủy (UFA): ~65.6 m²

1 Phòng khách
1 Bếp
2 Phòng ngủ
2 Phòng tắm
1 Logia
1 Sân phơi

B1b
B1b2 Phòng ngủ + 2 WC
DT tim tường (GFA): ~73.2 m²
DT thông thủy (UFA): ~65.6 m²

1 Phòng khách
1 Bếp
2 Phòng ngủ
2 Phòng tắm
1 Logia
1 Sân phơi

A1
A11 Phòng ngủ + 1 WC
DT tim tường (GFA): ~50.9 m²
DT thông thủy (UFA): ~45.3 m²

1 Phòng khách
1 Bếp
1 Phòng ngủ
1 Phòng tắm
1 Logia
1 Sân phơi

B1
B12 Phòng ngủ + 2 WC
DT tim tường (GFA): ~73.1 m²
DT thông thủy (UFA): ~66.2 m²

1 Phòng khách
1 Bếp
2 Phòng ngủ
2 Phòng tắm
1 Logia
1 Sân phơi

B2b
B2b2 Phòng ngủ + 2 WC
DT tim tường (GFA): ~74.4 m²
DT thông thủy (UFA): ~67.2 m²

1 Phòng khách
1 Bếp
2 Phòng ngủ
2 Phòng tắm
1 Logia
1 Sân phơi